Maxwell Street, Edinburgh, EH10 5HT

















Arrange a viewing
£4,100 Per Month
Zone Edinburgh
info@zoneletting.com
Our office hours are Monday to Friday, 9.00am to 5.00pm although the viewing hours extend to 8pm on weekdays and 12:30pm at weekends so we should always be able to fit you in.
Arrange a Viewing
Key Features
- Duplex apartment
- Gas central heating
- Washing machine
- Fridge freezer
- Separate living room
- Large box room
- Fully furnished
- HMO license for 5 people
- Central location
- Perfect for students
Property Description
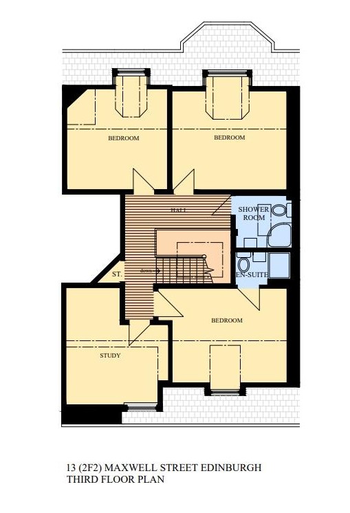
HMO LICENSE FOR 5 PEOPLE.................Accommodation comprises: Downstairs hallway with storage cupboards leading to bay-window living room, 2x large double bedrooms, fully fitted kitchen with utility room off and shower room with hand basin and toilet. Staircase to upper level which hosts 3x large double bedrooms (1x with en-suite shower room), 2nd shower room with hand basin and toilet, large storage / box-room. The property comes fully furnished to a high standard and is suited to groups of 5 students, looking to rent for the upcoming academic year. Call to view and secure this popular student property. Avail 08.06.2026.
LARN: 1810006
LL REG: 1791657/230/30102
EPC: D
Council Tax: E
Property Location

